REQUEST A TOUR If you would like to see this home without being there in person, select the "Virtual Tour" option and your agent will contact you to discuss available opportunities.
In-PersonVirtual Tour

$ 596,869
Est. payment /mo
Open Sun 11AM-4PM
4153 S S. LIMECREST PASEO #66 Ontario, CA 91761
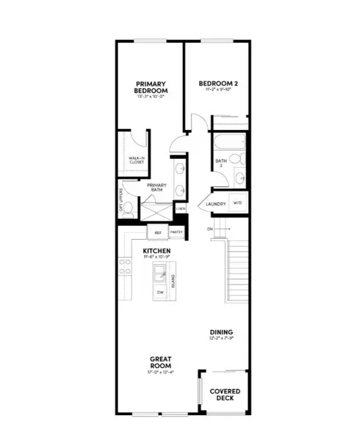
3 Beds
2.5 Baths
1,471 SqFt
Open House
Sun Dec 07, 11:00am - 4:00pm
UPDATED:
Key Details
Property Type Condo
Sub Type Condominium
Listing Status Active
Purchase Type For Sale
Square Footage 1,471 sqft
Price per Sqft $405
MLS Listing ID CROC25256080
Bedrooms 3
Full Baths 2
Half Baths 1
HOA Fees $375/mo
HOA Y/N Yes
Year Built 2025
Property Sub-Type Condominium
Property Description
Ready in December NEW Townhome in Award-Winning New Haven! Enjoy resort-style amenities and take advantage of a special lower rate plus closing costs credit on this home. Don't miss this opportunity. Experience luxury living with a downstairs bedroom, bathroom, and 2-car garage. Upstairs great room, a gourmet kitchen complete with a pantry, laundry primary bedroom and additional 2nd bedroom with their own bathrooms. The kitchen boasts bright and white cabinets, quartz countertops, a designer-selected tile backsplash, and a premium stainless steel Whirlpool appliance package. Every detail has been fully upgraded for a truly exceptional home. Live the benefits of buying brand new: a builder warranty, energy efficiency, and included smart home features. This home is perfectly located with easy access to shopping, new schools, Southern California's major freeways, and Ontario International Airport. New Haven residents enjoy resort-style amenities, including two indoor clubhouses, open-air clubhouses, six sparkling swimming pools, three jacuzzis, a kids' splash zone, pickleball and basketball courts, BBQ pavilions, firepits, playgrounds with a zipline, and more! An on-site lifestyle director ensures a vibrant community atmosphere. Plus, you're just steps from New Haven Marketplace, wh
Location
State CA
County San Bernardino
Interior
Interior Features Pantry
Cooling Central Air, Whole House Fan, Other, ENERGY STAR Qualified Equipment
Fireplaces Type None
Fireplace No
Laundry Other, Inside
Exterior
Garage Spaces 2.0
View Y/N false
View None
Total Parking Spaces 2
Private Pool false
Building
Lot Description Street Light(s), Storm Drain
Story 2
Level or Stories Two Story
New Construction No
Schools
School District Chaffey Joint Union High

© 2025 BEAR, CCAR, bridgeMLS. This information is deemed reliable but not verified or guaranteed. This information is being provided by the Bay East MLS or Contra Costa MLS or bridgeMLS. The listings presented here may or may not be listed by the Broker/Agent operating this website.
Listed by Caitlyn Lai-Valenti • Brookfield Residential Sales Inc.






