REQUEST A TOUR If you would like to see this home without being there in person, select the "Virtual Tour" option and your agent will contact you to discuss available opportunities.
In-PersonVirtual Tour

$ 349,000
Est. payment /mo
Active
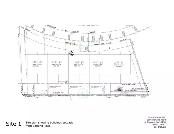
5306 Borland Road Los Angeles, CA 90032
10,432 Sqft Lot
UPDATED:
Key Details
Property Type Vacant Land
Sub Type Unimproved Land
Listing Status Active
Purchase Type For Sale
MLS Listing ID CRAR25143824
HOA Y/N No
Lot Size 10,432 Sqft
Acres 0.24
Property Sub-Type Unimproved Land
Property Description
Prime development opportunity in the heart of El Sereno, just minutes from Downtown Los Angeles, Cal State LA, and the San Gabriel Valley. This combined 10,432 SF site (APNs: 5221-006-026 and 5221-006-027) previously secured City-approved Vesting Tentative Tract Map entitlements for a 5-unit townhome-style condominium project—featuring 2 units of 4-bedroom, 4-bath + loft and 3 units of 3-bedroom, 3-bath + loft, each with an attached 2-car garage. Although the entitlement has since expired, it may be renewed, offering developers a valuable head start in a high-demand residential market. Ideally located within walking distance to Cal State LA and offering convenient access to major freeways, schools, parks, and public transportation, this infill site sits at the gateway between Northeast Los Angeles and the San Gabriel Valley, presenting an excellent opportunity to deliver much-needed housing in a thriving, well-connected
Location
State CA
County Los Angeles
Zoning LARD
Interior
Fireplace No
Exterior
View Y/N true
View Other
Building
Lot Description Sloped Up
New Construction No
Others
Tax ID 5221006027

© 2025 BEAR, CCAR, bridgeMLS. This information is deemed reliable but not verified or guaranteed. This information is being provided by the Bay East MLS or Contra Costa MLS or bridgeMLS. The listings presented here may or may not be listed by the Broker/Agent operating this website.
Listed by Chuhui Huang • Re/Max Premier Prop Arcadia






